会場アクセス
会場 鹿児島純心女子大学
〒895-0011 鹿児島県薩摩川内市天辰町2365番地
TEL (0996) 23-5311/FAX (0996) 23-5030
駐車場がすくないので、なるべく公共交通機関でお越しください。
路線図
- 飛行機の利用
- いわさきバスネットワーク (旧 林田バス)
- 高速バス
- 「高速バスせんだい号」 (南九州西回り自動車道経由)
- 鹿児島 (鹿児島中央駅・鹿児島駅) 〜鹿児島純心女子大学 約60分
- 高速バスせんだい号時刻表 (PDFファイル/294KB) (※別窓が開きます)
- 九州のバス時刻表 (検索用) (※別窓が開きます)
- 路線バス
- 高速バス
- JR九州 (新幹線・鹿児島本線) 、肥薩おれんじ鉄道
- JR九州 鹿児島の駅別時刻表 (※別窓が開きます)
- 博多駅〜川内駅まで(最速) 約 75分
- 新大阪駅〜川内駅まで(最速) 約 236分
- 肥薩おれんじ鉄道 時刻表 (※別窓が開きます)
- 八代駅〜川内駅まで 約 150分
- JR九州 鹿児島の駅別時刻表 (※別窓が開きます)
- 南九州西回り自動車道 (高速)
- 鹿児島IC〜薩摩川内都IC 約 50分
※市来IC〜串木野〜薩摩川内都の区間は通行料無料
- 鹿児島IC〜薩摩川内都IC 約 50分
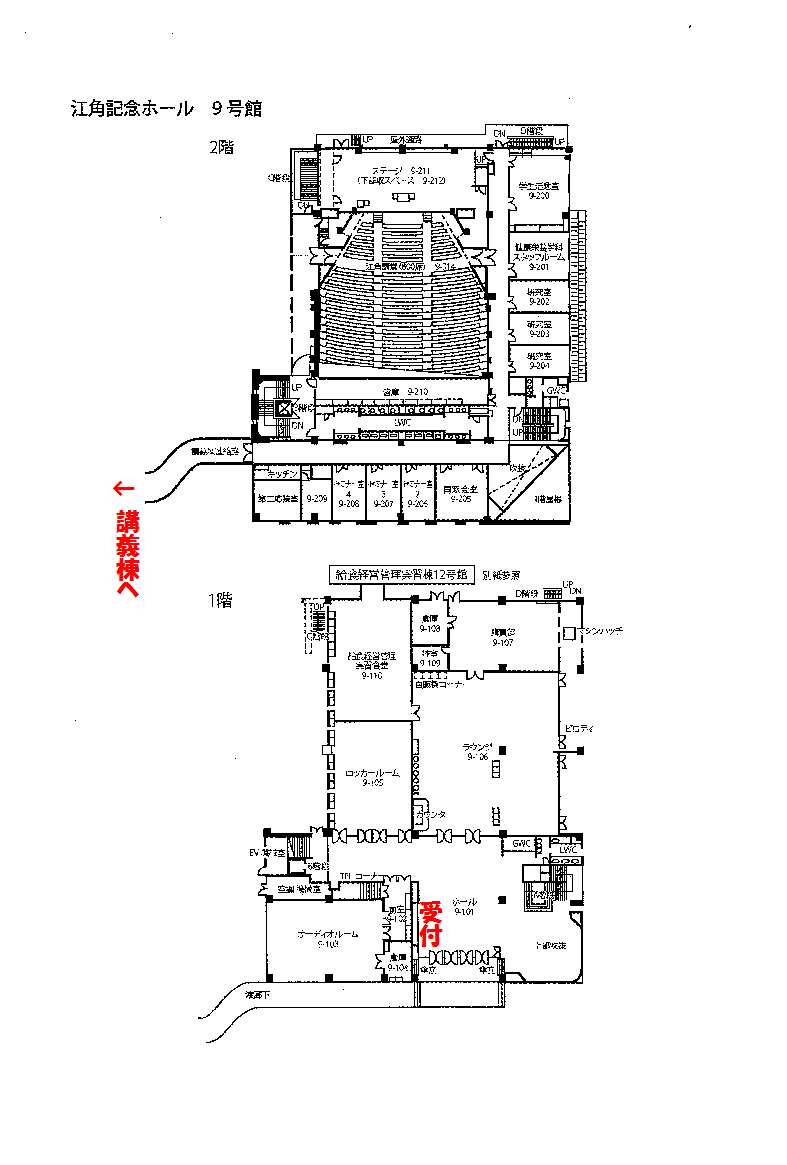
キャンパス内地図
会場は江角記念ホールです。

キャンパス内地図外観 (PDFファイル:246KB) ( (※別窓が開きます)


キャンパス内地図 (PDFファイル:136KB) ( (※別窓が開きます)

